Тема
Армирование ленты фундамента
Необходимые материалы и инструменты
1. Материалы для армирования
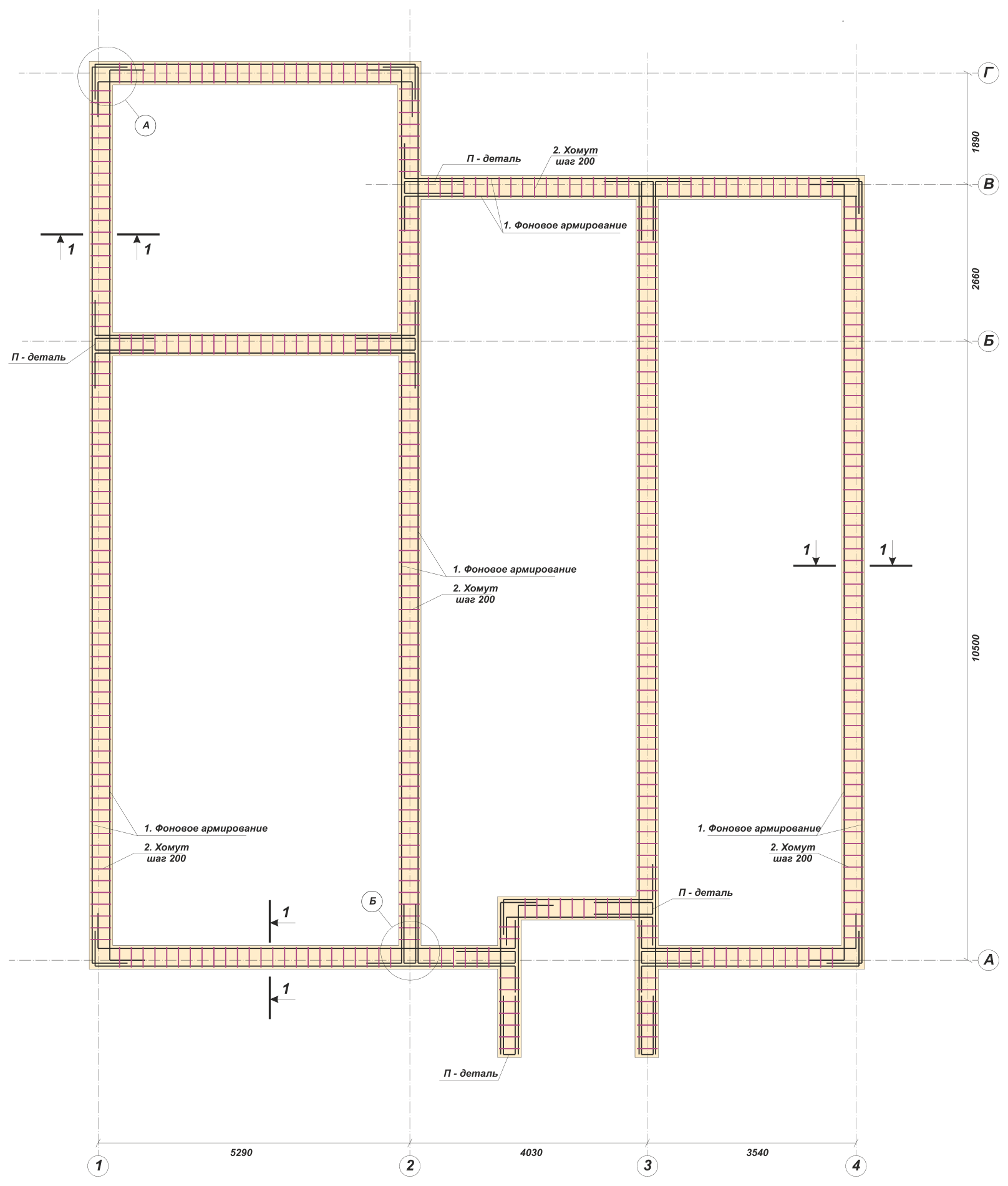
Спецификация деталей: Арматура ГОСТ 5781-82
| Наименование | Диаметр | Класс | Масса, кг | Длина, м | Кол-во, шт. | Масса 1 шт., кг | Общая длина, м |
|---|---|---|---|---|---|---|---|
| Фоновая арматура | 12 | А-III | 925,74 | 1042,50 | - | - | 1042,50 |
| Хомут | 8 | А-I | - | 2,45 | 416 | 0,968 | 1019,20 |
| Г-деталь | 12 | А-III | - | 1,55 | 136 | 1,376 | 210,80 |
| Г-деталь | 12 | А-III | - | 1,40 | 136 | 1,243 | 190,40 |
| Перемычка | 8 | А-I | - | 0,35 | 832 | 0,138 | 291,20 |
| П-деталь | 8 | А-I | - | 2,20 | 50 | 0,869 | 110,00 |

TIP
П-детали, заготовки для Г-деталей, перемычки и хомуты можно:
- Изготовить самостоятельно в ходе работ над арматурным каркасом
- Заказать их изготовление при покупке арматуры
- Купить готовые элементы
- Вязальная проволока - Ø1,2–1,6 мм
WARNING
Стандартов расхода вязальной проволоки не существует, поэтому специалисты ориентируются на личный опыт и созданные на его основе калькуляторы расхода.
- Фиксаторы арматуры типа «стульчик»
- Фиксаторы арматуры типа «звездочка»
TIP
Подробнее о видах фиксаторов арматуры и их применении можно узнать в соответствующем разделе.
2. Материалы для гидроизоляции
- Профилированная мембрана Planter
3. Инструменты
- Ручной крючок или аккумуляторный пистолет для вязки арматуры
- Ручной арматурогиб или ручной станок для гибки арматуры
TIP
Использование компактных электростанков позволяет достичь более высокой точности заданных углов при гибке и повысить скорость работы арматурщиков. Стоимость аренды таких аппаратов - 1300-1500 р./сут.
- Угловая шлифовальная машина («болгарка»)
- Круги обрезные по металлу для «болгарки»
- Рулетки
- Маркеры строительные
- Уровень строительный металлический пузырьковый - 0,6-1,2 м
- Уголок строительный металлический
- Отвес строительный
- Плоскогубцы
- Кусачки
- Нож строительный для резки гидроизоляции
- Шаблон-линейка или прибор для определения толщины защитного слоя бетона
1. Проверка точности разметки траншей
Еще раз убеждаемся в точности своих измерений, произведенных при финальной разметке траншей и сделанных «по месту», с учетом их глубины: -1.2 м от нулевой отметки.
INFO
Точность изготовления нашего фундамента должна быть до 1см, старайтесь разметить траншею очень точно. Измеряйте как стороны, так и диагонали. Измерение диагоналей дает точную геометрическую фигуру, а именно, прямые углы
2. Гидроизоляция основания ленточного фундамента
На этом этапе нам необходимо раскроить и уложить на дно траншей котлована профилированную мембрану Planter. При этом одновременно важно избежать раскроя полотна малой площади, «кусочков», и минимизировать количество отходов.
На углах перехлест гидроизоляции делаем не менее 20см

3. Изготовление хомутов, перемычек, П-деталей и заготовок для Г-деталей
С помощью ручного арматурогиба или станка для гибки арматуры готовим необходимое количество хомутов и П- деталей соблюдая их размеры и количество. (выше ведомость деталей) Нарезаем соответствующее ведомости количество перемычек и заготовок для внешних и внутренних Г-деталей. Однако обратите внимание: выполнение этого пункта актуально для вас лишь при условии, что вы отказались от покупки всех этих готовых элементов.
4. Укладка хомутов на дно траншей
Хомуты необходимо выложить с интервалом 0,2 м. В углах и пересечениях хомуты не используются

5. Сборка армирующего каркаса
Сборка каркаса высотой в 5 уровней (этажей) происходит поэтажно: вставляя арматуру в хомуты, вяжем из нее армокаркас.

INFO
Несколько советов по изготовлению армирующего каркаса
Нахлест в угловых точках Принципиально важно избегать нахлестов стержней продольной арматуры ближе, чем 0,5 м от угловых точек каркаса, и недопустимо непосредственно в этих точках.
Почему?
Угол армкаркаса – это зона концентрации напряжений всех его элементов. Нахлест (а он изначально менее жесток, чем целый стержень) делает такие участки уязвимыми. Кроме того, именно с целью придания каркасу жесткости, в угловых точках используют такие элементы, как Г- и П-детали (перемычки), и дополнительные хомуты. Нахлест продольных стержней в углах затруднит качественную обвязку всех элементов конструкции.
Каких расстояний придерживаться от нахлеста продольных стержней до угловой точки? Эксперты-арматурщики рекомендуют делать нахлест на расстоянии не менее 1,5 м от угла.
Как определить длину нахлеста? Это можно сделать, ориентируясь на диаметр арматуры: значение должно равняться 40 диаметрам прутка.
Разбежка Зачем нужна разбежка? Чтобы не ослаблять сечение фундамента множеством нахлестов одновременно. Например, если все продольные стержни одного этажа каркаса связать нахлестом в одной точке, то впоследствии в этом сечении бетон будет работать с «прерванной» арматурой, что снизит несущую способность фундамента. То же относится и к нахлесту соседних стержней по высоте. Разбежка нахлестов в продольном направлении распределяет эти «ослабленные» точки по всей длине каждого этажа армирующего каркаса. Каких расстояний придерживаться при разбежке нахлестов продольных стержней? На практике арматурщики стараются разнести нахлесты как можно дальше друг от друга, но минимальное расстояние между их краями должно составлять не менее 0,7-1,0 м.
5.1. Работа с угловыми продольными стержнями
Угол отгибаем по месту, однако длина стержня после загиба должна составлять не менее 0,6-0,7 м.

5.2. Разбежка нахлестов
Для того, чтобы тщательно соблюдать расстояние в 0,7-1 м между разбежкой нахлестов, в изготовлении каждого этажа каркаса используем продольные стержни разной длины, поочередно на каждом из этажей чередуя длинные пруты с короткими. Не забываем при этом придерживаться расстояния в 1,5 м при нахлесте прямых и угловых продольных стержней!

Согласно СП 63.13330.2018 и СНиП 52-01-2003, нахлёсты арматуры запрещено располагать в зонах максимальных напряжений, к которым относятся:
- Угловые соединения стен
- Участки под несущими стенами
- Зоны с изгибающими моментами
Так как у нас в углах есть Г-образный нахлест, к нему применимо правило разбежки. Делать нахлест в местах Т-образных соединений тоже нельзя. Нужно отступить от них не менее 1м.

5.3. Монтаж перемычек
(картинку с выделенным красным цветом перемычки)
5.4. Работа с Т-образными участками
Укрепляем по горизонтали Т-образные участки соединения лент каркаса с помощью П-деталей.

5.5. Монтаж заготовок Г-деталей
К монтажу внешних и внутренних стержней вертикальных Г-деталей приступаем после того, как каркас практически связан. Задача - с помощью Г-деталей впоследствии связать ленту фундамента с каркасом плиты. Однако на данном этапе у нас еще нет Г-деталей как таковых. Напомним: у нас есть заготовки для них - стержни длиной 1550 мм и 1400 мм (по 136 шт. каждого вида) (ссылка на ведомость деталей или на пункт “Изготовление хомутов, перемычек, П-деталей и заготовок для Г-деталей”). Для удобства дальнейшей работы при монтаже опалубки, мы не стали сгибать эти стержни заранее. Сейчас наша задача - смонтировать все стержни, связав их вместе с хомутами. При этом важно правильно осуществить монтаж данных стержней: короткие (длина - 1400 мм) вяжем с внешней стороны каркаса, длинные (длина - 1550 мм) вяжем с внутренней стороны каркаса. Впоследствии, уже после бетонирования ленты фундамента, эти стержни мы согнем под прямым углом и свяжем с каркасом плиты.
5.6. Финальный монтаж армокаркаса и его приемка
Для удержания армокаркаса в заданном положении по горизонтали устанавливаем его на фиксаторы арматуры типа ”стульчик”. Для создания защитного слоя бетона между арматурой и опалубкой устанавливаем фиксаторы типа “звездочка”. При проведении данных работ соблюдаем меры предосторожности. Особое внимание уделяем наличию выступающих элементов каркаса - вертикальных стержней будущей связки с каркасом плиты. Вызываем эксперта/прораба на осмотр армирования и приемку скрытых работ.